Innbyggingssisterne til vegghengt toalett, lekkasjesikker
Geberit Duofix TEK er en innbyggingssisterne som er utviklet for vegghengte toaletter og tilpasset norske byggeregler (TEK). Denne modellen har en konstruksjon som gjør det mulig å skifte ut sisternen fra rommet der den er montert, og den er laget for enkel montering av ulike faggrupper.
- Lekkasjesikker løsning for innbyggingssisterner
- Oppfyller norske byggeregler (TEK) med utskiftbarhet fra rommet
- Passer til vegghengt toalett og ulike sisternesystemer
- Enkel montering for alle faggrupper
Funksjonell og tilpasset norske krav
Med denne modellen får du en innbyggingssisterne som er spesielt utviklet for norske forhold og krav til lekkasjesikkerhet. Utskiftbarheten fra rommet gjør vedlikehold og eventuelle utskiftninger enklere, uten behov for å åpne veggen.
Design og materialer
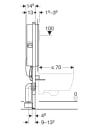
Geberit Duofix TEK er konstruert for skjult montering bak vegg og gir et ryddig uttrykk på badet. Den er laget for å passe til veggmonterte toaletter og ulike sisternesystemer. Materialer og farge er ikke spesifisert i kildene.
Montering og inkluderte deler
Produktet er tilpasset enkel montering for alle faggrupper. Informasjon om inkluderte deler, monteringsutstyr eller tilbehør er ikke oppgitt i kildene.
Vedlikehold
Vedlikehold og rengjøring kan utføres fra rommet der sisternen er plassert, takket være utskiftbarheten. Spesifikke rengjøringsprodukter eller metoder er ikke nevnt i kildene.
Velg Geberit Duofix TEK når du ønsker en lekkasjesikker innbyggingssisterne som oppfyller norske krav og gir fleksibilitet ved utskifting.






























